桂林廉政教育基地,室內布展面積1443㎡(一樓展廳面積494㎡;二樓展廳面積433㎡;三樓展廳面積428㎡);桂林市廉政教育基地將成為桂林市黨員干部黨風教育基地、黨史學習中心,及面向大眾的愛國主義教育基地.
桂林市廉政教育基地的四個維度(展館主線)
歷史深度——文化自信
全球廣度——制度自信
時代高度——道路自信
桂林角度——城市自信
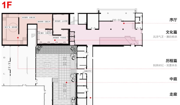
序廳
序廳是整館的名片,亦是觀眾對展館的第一印象。
設計利用空間兩個立柱,書寫對聯“丹桂抒廉意、儒林傳清風”為展示開場。頂部以LED彩幕展開一副淡雅清新的水墨畫,與館名墻前開滿蓮花的清秀水景相互呼應,營造出一種清雅、正氣的展廳氛圍。主題墻上連綿起伏、若隱若現的桂林山峰,在水池中形成倒映影像,以“山清水正”寓意“風清氣正”,彰顯出桂林以及桂林人性格中的”清正、直率、堅韌、自信“。
詩意廉鄉&廉韻悠長
“一方水土,養育一方人”,自古以來,桂林水的清、山的正成為人們廉潔正直的精神家園和靈魂寄托。我們在漫長的歷史長河中,采擷各個歷史時期的閃光人物,以他們的詩文描繪出一派詩意廉鄉的風采;我們選取顏延之、戎昱、陳繼昌、吳邁等歷朝歷代名臣、廉吏的詩文以及實物著作等,傳達出桂林一脈相承的廉潔文化。
廉潔印記
自古以來,桂林水的清、山的正成為人們廉潔正直的精神家園和靈魂寄托。接下來的廉潔印記展區,我們利用浮雕、影片等手段,將“靈渠”、“百年清官村”等桂林廉潔文化地標梳理成一個個清晰的廉潔印記,標注在觀眾的眼中、心中。
群星璀璨·千秋稱頌——步步生蓮&廉潔大道
桂林的清風廉韻孕育出一大批璀璨的廉潔名人,千秋萬世為世人稱頌。包拯“前世”—周謂、理學鼻祖—周敦頤、愛憎分明—梅摯、寵辱不驚—張孝祥……等人物或生長在這里、或曾停留在這里,但依然將自己的清廉人生書寫在這片土地上,匯聚成一條清廉為政的光明大道,指引著后人的方向。
當觀眾徐徐走過雕塑長廊,動感地投裝置將在觀眾腳下綻放出一朵朵盛開的蓮花,象征著清廉人生的光榮。
時代強音
正氣、豐富的展區內,通過圖文詳細展現出“八項規定“、糾正”四種作風”、推進“三嚴三實”、”群眾路線“、”兩個責任“、、“忠誠是第一位的要求”……等思想的結晶,它們不僅是制度建設的新發展,亦是堅守信仰,推進依法治國的時代最強音!
警鐘長鳴-感應式藝術裝置
展區中央,一個斜扣的巨型銅鐘不時發出沉重的鳴響。當觀眾走近鐘的內部,會看到投影營造的“風暴眼“將許許多多貪官的名字卷入風暴的中心,直至消失。藝術化的表現手段,帶給觀眾強烈的內心震撼。
創意展項-“不要邁出第一步”
四周墻面上,觀眾將看到“猛藥去疴、重典治亂”的決心下、在“老虎蒼蠅一起打”的戰略指引下、貪官污吏無所遁形,他們身敗名裂的結局已不可重來。觀眾在警醒之余,內心受到巨大的觸動,進而產生“不敢腐”的強烈震懾作用。對于腐敗案例教育點的深度挖掘,不僅起到良好的教育作用,也讓案件真正成為政策的發聲筒。
照鏡正身-情感體驗空間
繞過一面墻,觀眾來到一個三面圍合式的空間內,兩側墻面展出貪腐贓物,而正面墻面則寫滿倒置的文字,當觀眾轉身,即看到身后是一面頂天立地的鏡子,在鏡子中,文字變成正面,觀眾看到自己,也辨認出文字內容—“為政之道、腐亡廉興”、“心有所畏、行有所止”、“為民、務實、清廉”等。獨特的創意展區,用一種無聲的方式,傳遞著深刻的涵義。
人生是否能重來-劇場化演繹體驗空間
繼續向前,觀眾來到一個圍合式的展區。一個巨大的生命時鐘懸掛在頂部,刻度代表著一個人的一生。隨著指針的走動,墻面的投影將展現出一名黨員的腐化墮落史——“少年入隊“—”青年入黨“—”中年得到提拔“—”逐漸腐化墮落“—”走向身敗名裂“,當時針走到最后一個階段,頂部的投影在地面上打出一行大字:”人生是否能重來?“,隨之表針開始逆時針轉動,觀眾在投影畫面上看到腐化官員一步步回到從前,直至回到一位面對國旗行少先隊禮的少年臉上。劇場化演繹的方式,提醒觀眾一個現實的答案: ”電影可以倒帶,但人生卻不能重來!“
貪廉一念間、榮辱兩世界—心理置換對比空間
案例區的盡頭,在算好人生七筆賬對面,觀眾將看到一面鐵籠,抽象的城市窗口漸次亮起,通過巧妙地心理置換,鮮明而強烈地告誡人們,一念之間的貪腐不僅危害國家、也會對人生造成難以彌補的傷害。

壽文化,這一蘊含深厚歷史底蘊與人文情懷的文化現象,自其誕生之日起,便深深植根于中華民族的精神土壤之中。它體現了人們對長壽的向往與追求,是中國傳統文化的重要組成部分。在壽縣,這座古老而神秘的土地上,壽文化更是得到了淋漓盡致的展現與傳承,成為壽縣歷史文化的瑰寶。

當前,我國經濟已進入高質量發展階段,但城鄉發展的二元結構問題依舊突出,城鄉發展不平衡不充分成為社會發展亟待解決的問題。“要推動城鄉融合發展見實效,健全城鄉融合發展體制機制”。特色小鎮因符合產業轉型升級和新型城鎮化方向,能夠疏解城市功能,進一步推動城鄉資源整合,引導農村人口不斷向特色小鎮轉移,帶動鄉村振興,形成工農互促、城鄉互補、協調發展、共同繁榮的新型工農城鄉關系,成為加快破解城鄉融合發展難題的方向之一,成為實現城鄉融合發展的重要載體。

當時間跨入2025年,博物館的形態正在經歷一場無聲的變革——它不再只是歷史與文化的容器,而成為連接過去與未來的動態場域。作為展廳設計師,你是否也感受到這種悄然蔓延的挑戰?觀眾對沉浸感的閾值越來越高,技術迭代的速度遠超想象,而如何用空間講好一個"不喧嘩,自有聲"的故事,正成為行業的核心命題。

在這個日新月異的時代,前沿科技如同破曉的曙光,照亮了人類前行的道路。人工智能(AI),這一昔日科幻小說中的概念,如今已悄然融入我們的日常生活,成為推動社會進步的重要力量。上海,這座國際大都市,以其深厚的科技底蘊和前瞻性的戰略眼光,成為了中國乃至全球人工智能發展的前沿陣地。上海·人工智能展廳,正是這一時代浪潮中的璀璨明珠,它不僅記錄了人工智能的發展歷程,更展望了未來的無限可能。

當觀者邁過那道無形卻厚重的門楸,便已踏入一個超越物理界限的時空場域。此非尋常過渡之所,而是文明基因的顯影池、歷史塵埃中淬煉出的精神原鄉,更是觀者與文明對話的初始儀式。序廳之設,非為區隔內外,乃成古今對話的樞機,暗合"觀乎人文以化成天下"的古訓與"認識你自己"的哲思,更蘊含"天人合一"的東方智慧,成為古今中外交融的文明渡口。此間氣象,以空間為紙、器物為墨、光影為筆,書寫著一部流動的文明史詩,引領觀者完成從現實到歷史、從器物到哲思、從線性時間到循環時空的升華之旅。

那時的展廳,不似今日酷炫吊炸天、科技感十足,它們更像是穿著舊式衣裳的老者,講述著那個時代特有的質樸與純真。燈光昏黃而單一,沒有LED的璀璨奪目,只有白熾燈下那抹溫暖的黃暈,緩緩鋪灑在每一件展品之上,為它們披上了一層柔和而略帶懷舊的光澤。展板設計簡單直白,色彩搭配往往局限于黑白灰或是幾抹鮮艷的紅藍綠,雖顯單調,卻也透露出一種不加修飾的真實與直接。

就在不久前,我走進一所農業高校的虛擬仿真中心,眼前的景象讓我大受震撼:沒有泥濘的膠鞋,沒有刺鼻的農藥味,只有一排排閃爍的屏幕和此起彼伏的鍵盤敲擊聲。幾個00后學生正緊握著類似賽車游戲的方向盤,眼神專注地盯著屏幕上的虛擬田壟。

在2024年11月6日這個金秋送爽的日子里,上海這座國際大都市再次迎來了全球矚目的盛事——第七屆中國國際進口博覽會(以下簡稱“進博會”)。作為世界上首個以進口為主題的國家級展會,進博會不僅是中國對外開放的重要窗口,更是全球企業展示創新成果、拓展國際市場的絕佳平臺。在本屆進博會上,資生堂,這一享譽全球的美妝巨頭,連續第六年參展,并以一個全新的面貌——“資創園”,驚艷亮相6.1號消費品館,為全球觀眾帶來了一場關于美的盛宴。

瑞士館的展覽設計概念植根于清晰、結構和精致簡約——這些核心價值反映了瑞士的國家身份,在緊湊的 90平方米空間內進行設計,該空間不僅僅是一個展覽攤位:它是一個精心策劃的體驗,將品牌影響力與建筑優雅融為一體,在瑞士國家館的設計方面樹立了高標準。